Villa a schiera centrale in vendita

Ravenna, Via D. Turci - Castiglione Di Ravenna
€ 145.000
4 locali 4 locali
150 Mq 150 Mq
2 bagni 2 bagni

Villa a schiera centrale in vendita

Ravenna, Via D. Turci - Castiglione Di Ravenna

Descrizione annuncio

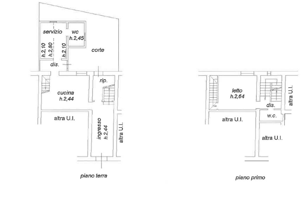
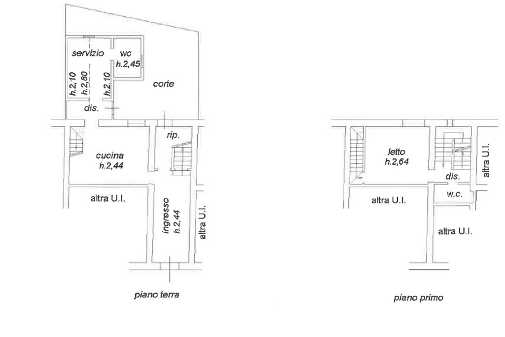
CASTIGLIONE DI RAVENNA – Villetta centrale con corte privata e ampi spazi.

Nel tranquillo contesto residenziale di Castiglione di Ravenna, proponiamo villetta centrale con corte privata, sviluppata su tre livelli, ideale per famiglie che desiderano spazi comodi e ben distribuiti.

Il piano terra è composto da una accogliente zona giorno, cucina separata con accesso alla corte, disimpegno, bagno finestrato e pratico ripostiglio.

Al piano primo troviamo la zona notte composta da camera matrimoniale, disimpegno e secondo bagno.

Il piano secondo presenta due camere matrimonaili e una cameretta, ideali come studio o ambienti hobby.
L’immobile necessita di lavori di ristrutturazione.

Completa la proprietà, in corpo staccato, due ripostigli, perfetti come deposito, ricovero bici o spazio multiuso.

La soluzione rappresenta un’ottima opportunità per chi cerca indipendenza, spazi generosi e la tranquillità di una zona ben servita.

Mostra tutto

Nelle vicinanze

Farmacia Farmacia
Castiglione
590 m
Ristoranti Ristoranti
Pizzeria Punto Blu
640 m
Trattoria Emilia
680 m
Mostra tutto

Caratteristiche

Rif.:
61186349
Piano:
2 di 3 (Piano medio)
Camere da letto:
4
Arredamento:
Assente
Condizionamento:
Autonomo
Ascensore:
No
Mostra tutto
Prezzo Prezzo
€ 145.000
Rata mutuo Rata mutuo
€ 689 / mese
Spese annue Spese annue
€ 0
Proponi il tuo prezzoProponi il tuo prezzo

Classe Energetica

G
G
G
G
G
G
G
G
G
EP globale non rinnovabile:
305.80 kW h/m² anno
EP globale rinnovabile:
305.80 kW h/m² anno
EP invernale del fabbricato:
EP estiva del fabbricato:
Anno di costruzione:
2007
Riscaldamento:
Autonomo
Tipo impianto:
A radiatori
Tipo alimentazione:
Metano

Ti interessa visionare l'immobile?

Fissa un appuntamento  Fissa un appuntamento

Richiedi informazioni

Clicca su Leggi per aprire l'informativa
* Questi campi sono obbligatori

Calcola il tuo mutuo

Semplice e senza impegno
Anticipo

( % )
Mutuo

( % )

pochi semplici passi

inserisci i tuoi dati
Questionario completato
Grazie per aver richiesto un appuntamento senza impegno con un nostro Consulente del Credito e Assicurativo.

Hai inserito correttamente tutti i dati necessari e a breve riceverai una e-mail con un link da convalidare per inviare i tuoi dati.
Affiliato
Studio Cervia Srl
Viale Roma, 25 48015 Cervia (RA)

Il nostro staff


  • Riccardo Riciputi
    Affiliato

  • Monica Nini
    Responsabile

  • Federica Baldisserri
    Collaboratrice

  • Timea Ban
    Coordinatrice

  • Loredana Condrea
    Collaboratrice

  • Matteo Spignoli
    Collaboratore
Viale Roma, 25 48015 Cervia (RA)
Zona: Cervia
Mostra su mappa
Orari: lunedì - venerdì 09.00/13.00 15.00/19.30; sabato 09.00/13.00 15.00/18.30;
Affiliato
Studio Cervia Srl
Viale Roma, 25 48015 Cervia (RA)

2026 Tecnocasa Franchising S.p.A. - P. IVA 08365160152 - Via Monte Bianco 60/A 20089 Rozzano (MI). Ogni agenzia ha un proprio titolare ed è autonoma. Privacy policy | Policy utilizzo | Cookie policy